
Photo voltaic web site surveying.
The photo voltaic power trade is not any stranger to abrupt market modifications, and 2025 has been no exception. Many photo voltaic contractors have packed set up calendars, with shoppers desirous to seize the complete worth of the federal photo voltaic Funding Tax Credit score (ITC) in the USA. This urgency means photo voltaic corporations have to be diligent that their post-sales course of progresses with out delays.
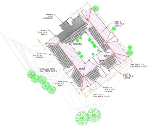
Probably the most vital steps in protecting initiatives on a decent schedule is quick photo voltaic allowing and inspections. A stalled or rejected photo voltaic allow software can value weeks, jeopardize deadlines and pressure buyer relationships. First-pass approval is extra necessary than ever, as a result of the clock is ticking.
AHJ photo voltaic allowing necessities: What contractors have to know
An authority having jurisdiction (AHJ) approves photo voltaic permits inside its designated space and is liable for imposing constructing and electrical codes. Some approve photo voltaic permits in a matter of days, whereas others take weeks to overview purposes. Allow processing instances can range extensively throughout jurisdictions and by mission sort.
Likewise, native allow necessities range by the AHJ. Instruments like SolarAPP+, developed by NREL, assist automate residential photo voltaic allowing when adopted by AHJs, although the platform isn’t obtainable for business initiatives.
Consequently, it’s vital to cater photo voltaic allow purposes to AHJ necessities. This may be particularly difficult when photo voltaic corporations broaden into new areas and should work with new AHJs which have totally different necessities.
Some jurisdictions or utility interconnection guidelines require structural or electrical engineering stamps. Structural stamps are extra frequent in areas with heavy snow masses, excessive wind speeds or better seismic danger.
These stamps have to be issued by a licensed skilled engineer (PE) within the state the place the mission is positioned. For instance, a coastal Florida AHJ could require diligent wind load calculations for hurricane situations.
Widespread causes photo voltaic allow purposes are rejected
There are a number of avoidable culprits that trigger nearly all of allow resubmissions. These errors embody lacking structural load calculations, incomplete or inaccurate single-line or three-line diagrams, and never assembly required codes. This consists of the NEC (Nationwide Electrical Code), constructing codes and native code amendments.
High photo voltaic allow rejection points
- Incomplete or inaccurate PV plan units – Lacking web site plans, mislabeled tools or incomplete single-line or three-line diagrams
- Lacking structural load calculations – Particularly in areas with heavy snowfall, excessive wind or seismic exercise
- Incorrect or lacking electrical particulars – Conductor sizing errors, improper breaker scores and lacking tools grounding conductors
- Not Complying with NEC or IBC codes – AHJs usually cite NEC Article 690 (PV methods), 705 (interconnections) and Worldwide Constructing Code (IBC) sections, however native amendments may additionally apply
- Incorrect system labeling and placards – Lacking speedy shutdown labels, incorrect disconnect signage or improperly formatted warnings
- Lacking specification sheets – Lacking module, inverter, racking or battery reduce sheets with UL listings
- Improper setbacks and hearth entry pathways – Violations of native hearth code or insufficient clearance on rooftops
- Lack of required engineering stamps – Structural or electrical PE stamps not included, or not from knowledgeable licensed in that state
Sadly, previous allow rejections can lower a photo voltaic firm’s credibility with the AHJ and stall mission timelines. When unsure, photo voltaic contractors ought to make clear allow necessities earlier than making use of, particularly when working beneath tight deadlines.
Quick photo voltaic allowing methods
As photo voltaic corporations scramble to fulfill photo voltaic ITC deadlines, it’s simple to make small errors that result in mission delays. Following greatest practices to submit a whole photo voltaic allow package deal initially is vital.
- AHJ photo voltaic allow necessities generally embody:
- A photo voltaic web site plan
- Electrical single-line or three-line diagrams
- Structural load calculations
- Gear spec sheets
- Required labeling and warnings
- Fireplace entry pathways and setbacks
- Grid interconnection particulars
As well as, it’s useful to know interconnection necessities, as some utilities could require further paperwork or overview steps. Ready till receiving photo voltaic allow approval can stall the mission and trigger disagreeable surprises.
A top quality photo voltaic allow software begins with an correct evaluation of the location situations. Flagging design and format constraints early may also help corporations sidestep allow rejections. Using progressive drone expertise helps make sure that methods match inside their allotted area.

Some photo voltaic corporations use photo voltaic allow design providers, web site survey or engineering providers, particularly for bigger business initiatives which have extra intensive allow necessities or when their groups are stretched skinny. This technique may be particularly efficient when working beneath tight deadlines or coping with new AHJs.
The simplest design companions, like Exactus Vitality, transcend simply finishing photo voltaic allow paperwork. By utilizing drones and proprietary software program, they make sure the photo voltaic designs match the roof and flag points like roof injury or electrical dangers earlier than they change into costly surprises. An skilled agency can also be conscious of the precise necessities of AHJs, permitting contractors to submit personalized allow purposes that meet native standards on the primary try.
As photo voltaic contractors put the pedal to the steel to fulfill the photo voltaic tax credit score deadlines, quick photo voltaic allowing could make or break many initiatives. Corporations could have crews scheduled and tools on web site, however with out allow approval, all the pieces involves a halt. Delays of only a few weeks can lead to lacking deadlines, a decrease return on funding and a discount in buyer belief.
Balancing velocity and code compliance is important for first-pass approval. Sadly, slicing corners will not be an possibility, as inspectors and utility suppliers count on designs that meet NEC, IBC and interconnection requirements.
Photo voltaic corporations thriving within the turbulent 2025 photo voltaic market are those who take photo voltaic allow purposes and inspections critically. Correct PV drawings, proactive interconnection planning and required structural calculations are what hold renewable power initiatives marching ahead.
Trending Merchandise
